Redefinindo Espaços Urbanos
Onde: • 12 de Julho - 2024 | Fotos Leonardo Rodrigues, Eduardo Eckenfels, Leonardo FinottiO projeto BsAs 350 prioriza sustentabilidade, pequenas escalas e uma economia inteligente. Com apartamentos únicos e áreas comuns essenciais, o edifício integra-se harmoniosamente à cidade
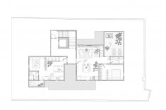
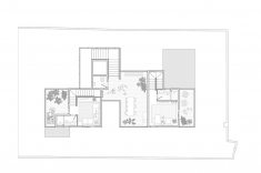
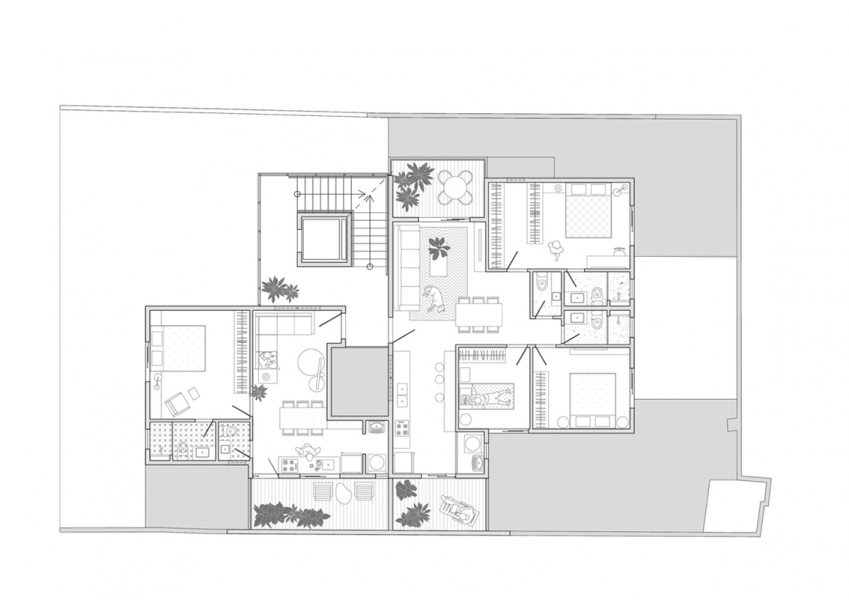
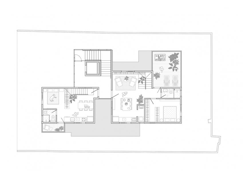
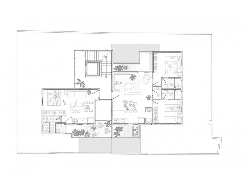
A proposta do edifício BsAs 350, localizado na cidade de Carmo em Minas Gerais, com projeto assinado pelo escritório Vazio S/A Arquitetura e Urbanismo é oferecer alternativas à uniformidade dos projetos imobiliários, priorizando a sustentabilidade, a pequena escala e a economia inteligente. O carro compartilhado, as ciclovias e a economia que atende a muitos em vez de poucos apontam para uma arquitetura que consome menos e propõe mais para a cidade: uma nova relação entre edifícios e a rua, um novo conceito de térreo, uma revalorização da escada comum e das áreas abertas.

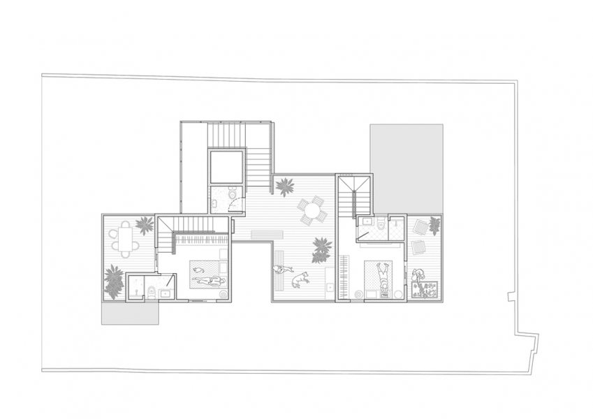
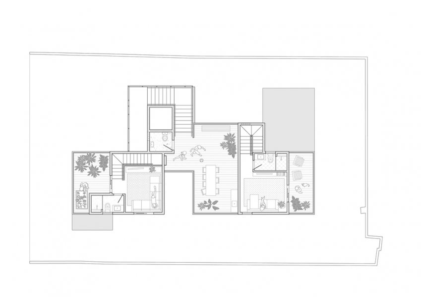
O projeto conta com apartamentos com terraços privativos e ventilação cruzada. As áreas comuns são estritamente necessárias, e os materiais são básicos e atemporais. Não há academia, escritório em casa, bar lounge, cuidado para bebês ou clube para crianças; mas há nove "casas" com terraços ensolarados. Sempre integrados aos cômodos, eles funcionam como pequenos quintais.

O edifício tem uma altura muito menor do que seus vizinhos e explora os afastamentos laterais em volumes plásticos em degraus. Apesar dos vizinhos altos e sérios, o escalonamento permite que o sol brilhe em todos os quintais.


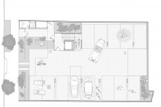
O estacionamento é verde e aberto. A garagem se torna um jardim, um olho urbano – ou talvez um playground ou uma sala de estar. Com a iminência do carro autônomo no futuro próximo, talvez a propriedade de carros seja desnecessária e as garagens terão que ser transformadas em espaços multifuncionais. Assim, o espaço que em outros edifícios é uma área inóspita e escura, aqui é a entrada para um edifício integrado à rua.

Vista frontal do edifício e a escada que percorre todos os andares.


Metragem quadrada do projeto: 832 m²
Metragem quadrada do terreno: 360 m²
Quantidade de andares: 5
Serviço
Vazio S/A
Brasil
Av. Cristóvão Colombo 550 / 503 - Belo Horizonte - MG
+55 31 3286 3869
Portugal
Rua Fernandes Tomás 539/2.2 - Porto
+351 912-746-616
info@vazio.com.br
@vazio_sa

